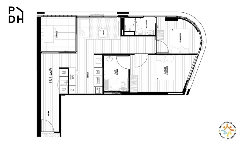
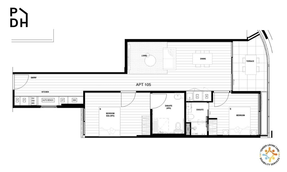
VIC
Apartment
2 bedroom(s) available
2 bathroom(s)
Each apartment features a private participant bedroom with ensuite, an additional room, accessible bathrooms, open living and dining areas, and a layout that supports independence and comfort. A dedicated On-Site Overnight Assistance (OOA) room is included, with flexibility for modifications if required.
For full SDA and funding details, view this property on Housing Hub – Murrumbeena SDA Apartments.




Enquire Online
Claire SaydeTrustindex verifies that the original source of the review is Google. I ordered a coffee at the TLC Cap and Frapp stand this morning and would like to thank Christopher for his politeness and great coffee. Keep it up Christopher you made my day!Posted on Amin MarhabaTrustindex verifies that the original source of the review is Google. Great service, awesome staff. Great experience.Posted on Rouada KanjTrustindex verifies that the original source of the review is Google. great service and wonderful group of people, amazingPosted on Google rating score: 4.2 of 5,
based on 48 reviews